Skip to content
Tagasi
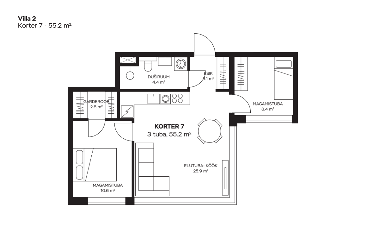
Korter 7
Korter
7
Korrus
2
Tubade arv
3
Üldpind m2
55.2
Rõdu/terrass m2
Avaleht
Siseviimistlus
Ehituskirjeldus
Müügiinfo
Hinnakiri
Avaleht
Siseviimistlus
Ehituskirjeldus
Müügiinfo
Hinnakiri
Ridaelamud