Skip to content
Tagasi
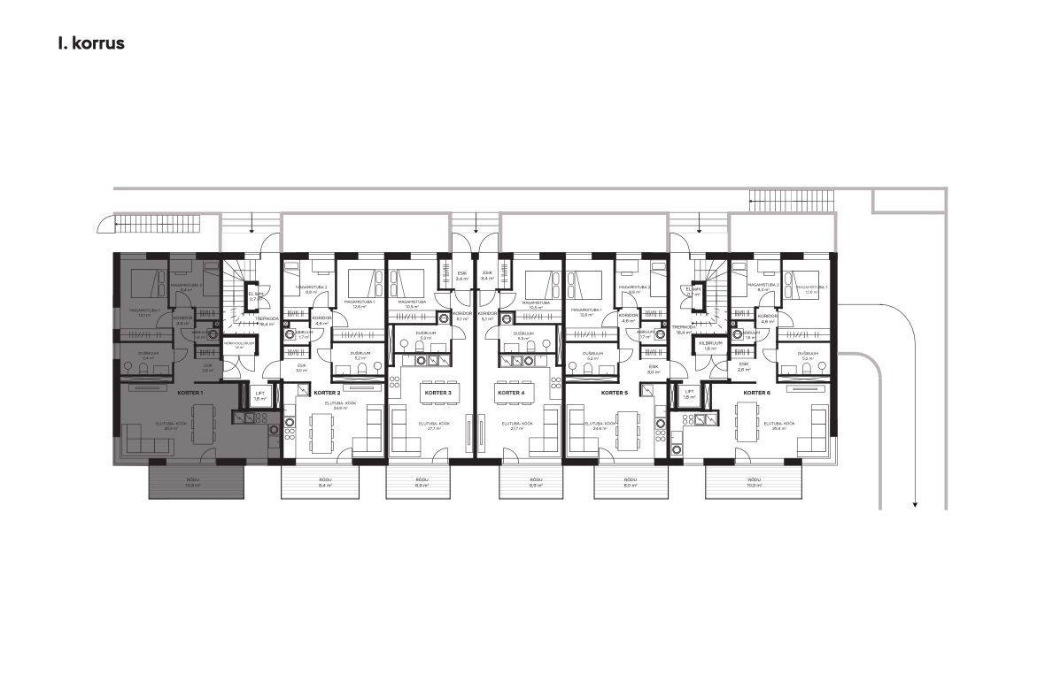
Korter 1
Korter
1
Korrus
1
Tubade arv
3
Üldpind m2
71.4
Rõdu/terrass m2
10.3
Lae alla plaanide PDF