Skip to content
Tagasi
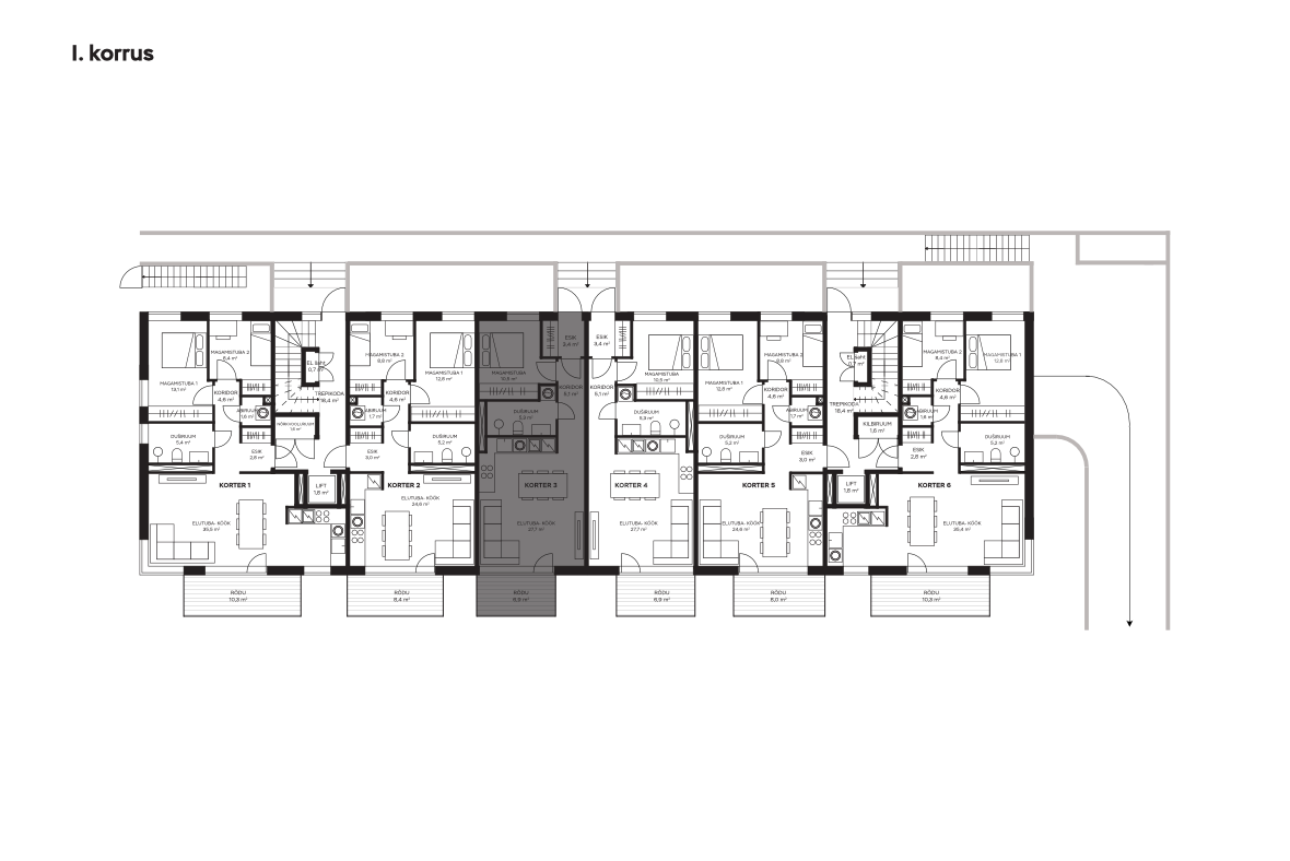
Korter 3
Korter
3
Korrus
1
Tubade arv
2
Üldpind m2
52.0
Rõdu/terrass m2
6.9
Lae alla plaanide PDF