Skip to content
Tagasi
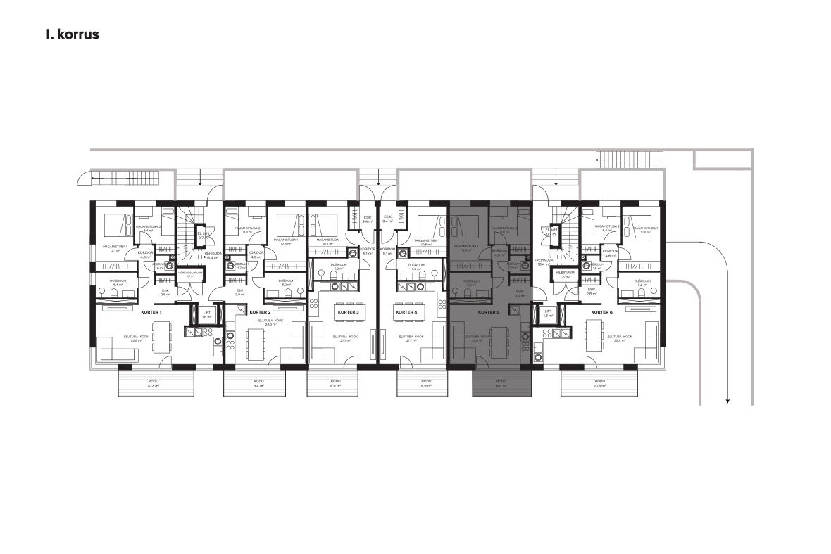
Korter 5
Korter
5
Korrus
1
Tubade arv
3
Üldpind m2
60.7
Rõdu/terrass m2
8.0
Lae alla plaanide PDF