Skip to content
Tagasi
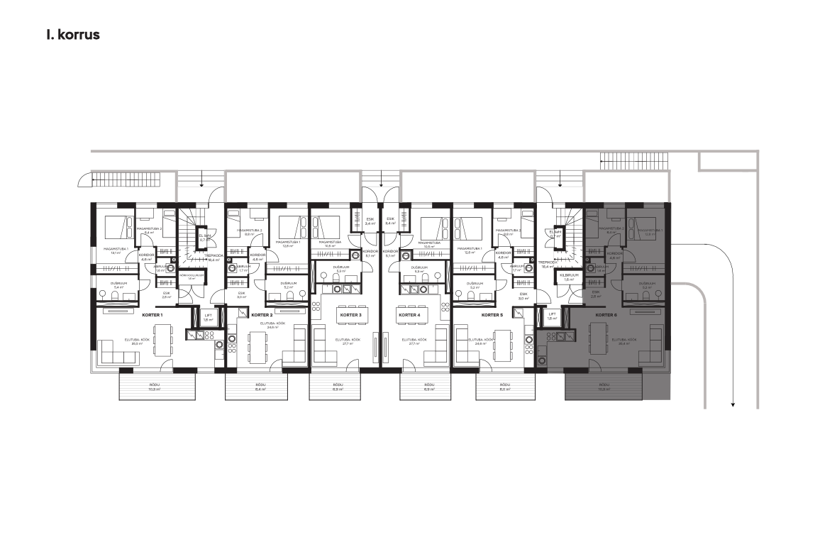
Korter 6
Korter
6
Korrus
1
Tubade arv
4
Üldpind m2
70.8
Rõdu/terrass m2
10.3
Lae alla plaanide PDF