Skip to content
Menu
Avaleht
Galerii
Suur-Jõe 26
Suur-Jõe 28
Siseviimistlus
Ehitus
Müügiinfo
Menu
Avaleht
Galerii
Suur-Jõe 26
Suur-Jõe 28
Siseviimistlus
Ehitus
Müügiinfo
Tutvustus
Galerii
Hinnakiri
Menu
Tutvustus
Galerii
Hinnakiri
Ehitus
Siseviimistlus
Müügiinfo
Menu
Ehitus
Siseviimistlus
Müügiinfo
Tagasi
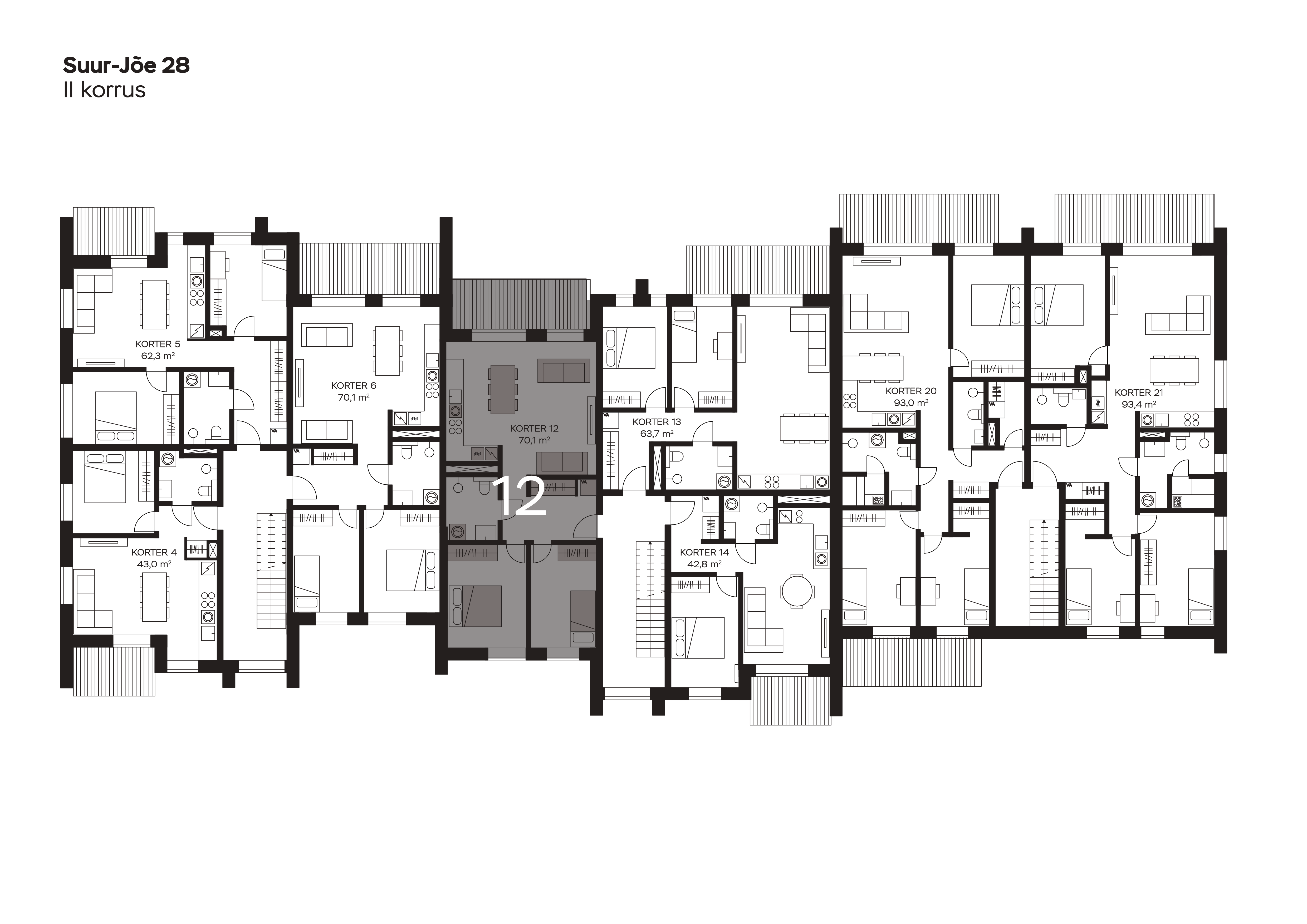
Korter 12
Korter
12
Korrus
2
Tubade arv
3
Üldpind m2
70.1
Rõdu/terrass m2
9.9
Lae alla plaanide PDF