Skip to content
Menu
Avaleht
Galerii
Suur-Jõe 26
Suur-Jõe 28
Siseviimistlus
Ehitus
Müügiinfo
Menu
Avaleht
Galerii
Suur-Jõe 26
Suur-Jõe 28
Siseviimistlus
Ehitus
Müügiinfo
Tutvustus
Galerii
Hinnakiri
Menu
Tutvustus
Galerii
Hinnakiri
Ehitus
Siseviimistlus
Müügiinfo
Menu
Ehitus
Siseviimistlus
Müügiinfo
Tagasi
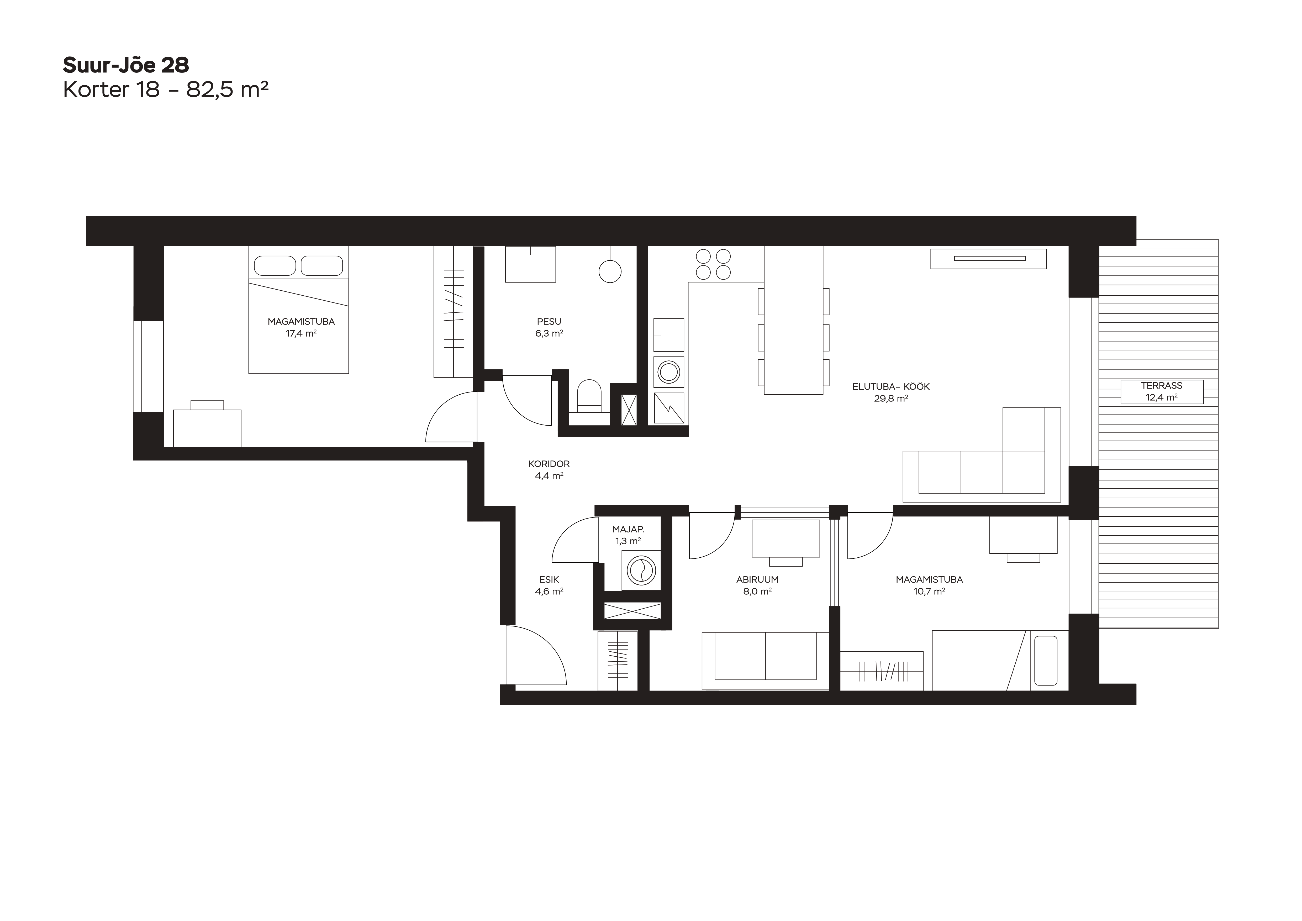
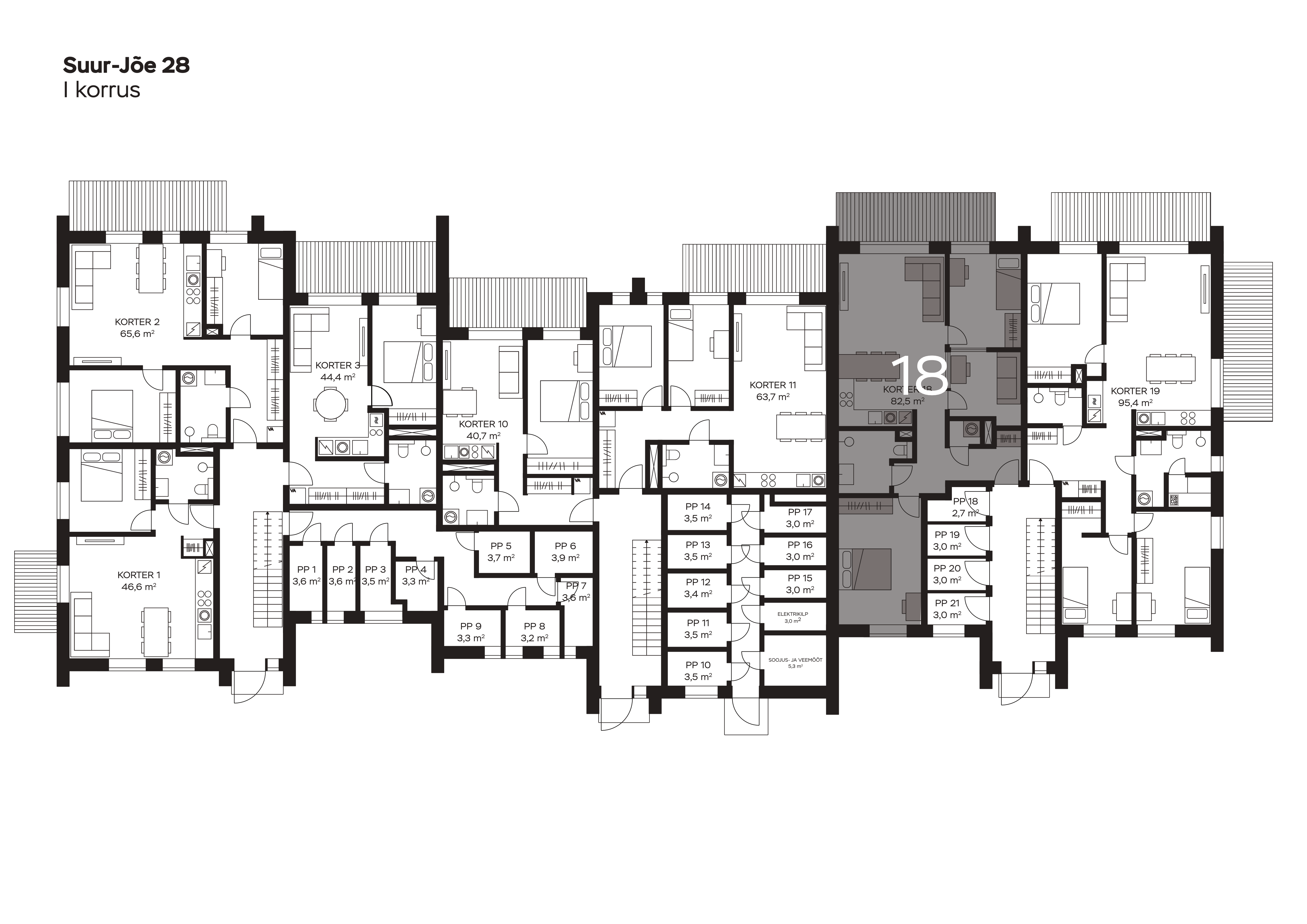
Korter 18
Korter
18
Korrus
1
Tubade arv
3
Üldpind m2
82.5
Rõdu/terrass m2
12.4
Lae alla plaanide PDF